Due to the health concerns created by Coronavirus we are offering personal 1-1 online video walkthough tours where possible.




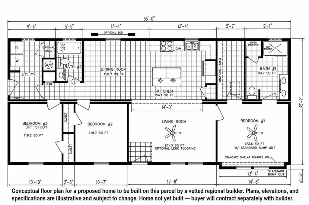
Turn Key Land Home Opportunity! Build-ready 1.1-acre homesite in Chester, Dodge County with optional new construction by a vetted regional builder—a true land + home package opportunity. This flat, wooded lot offers ~140 feet of paved road frontage on Middle Ground Church Road. Located between the Oconee and Ocmulgee Rivers, this parcel is near I-16 via State Route 518, connecting to Eastman (15 miles). Pre-approved for a 1,420 sq ft open-concept modular home with vaulted ceilings (3 BR | 2 BA); alternate models available. A complete land + home + sitework package is estimated under $240K based on builder pricing. Home is not yet built. Electricity available; well and septic included in sitework estimate. Zoning permits residential development. Chester offers low cost of living, above-average schools, and a family-friendly community. Typical build timeline: 5–6 months from builder contract. Buyer contracts directly with builder; land & home sold separately. We can introduce buyers to the builder and provide financing connections. Contact us for more information.
| a month ago | Status changed to Active | |
| a month ago | Price changed to $239,999 | |
| a month ago | Listing updated with changes from the MLS® | |
| a month ago | Listing first seen on site |
Did you know? You can invite friends and family to your search. They can join your search, rate and discuss listings with you.